انواع تیرآهن
یکی از مصالح ضروری در ساختمان سازی تیرآهن است. پروفیل تیر برای ستون و سقف سازه های اسکلت آهنی به کار می رود. مسائلی نظیر عوامل اقتصادی، زیر بنا، شرایط اجرا، آب و هوا، کیفیت اجرا، عوامل فنی سازهای و همچنین درخواست کارفرما از جمله دلایلی است که ساختمان را آهنی یا بتنی اجرا می کنند.
تولیدات آهنی و فولادی عمدتا به صورت پروفیل تبدیل شده و مورد استفاده قرار می گیرد. پروفیل های فلزی معمولا یا به صورت شاخه ای عرضه می شوند یا به صورت رولی نظیر ورق تولید می شوند. در این بین پروفیل تیر آهن به دلیل فرم خاص مقطع و قدرت بالا در تحمل نیروها یکی از مهمترین پروفیلها در صنعت ساختمان سازی شناخته میشود. در این مطلب به انواع استاندارد تیرآهن میپردازیم.
تیرآهن چیست
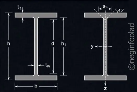
تیر پروفیلی آهنی است که از نظر ظاهری دارای دو بال عمودی موازی بر هم است که توسط تیغه ای به نام جان به یکدیگر با فاصله ای معین متصل شده است. نحوه تولید تیر به کمک نورد گرم است. پر استفاده ترین نوع تیر ساختمانی در سایز های 14، 16 و 18 است. البته تیر آهن در اندازه های 6 تا 100 نیز تولید می شود که اندازه های بالای 30 مصارف صنعتی، پل سازی و کشتی سازی دارد و عمدتا وارداتی هستند. در حقیقت اندازه تیر بیانگر طول تیغه میانی یا همان جان است. تیر آهن 18 یعنی فاصله جان آن 18 سانتی متر است.
انواع استاندارد تیرآهن
تیر آهن IPE
اولین مشخصه تیرهای IPE یکسان بودن ضخامت بال های آن است. این پروفیل در ایران بیشترین کاربرد را دارد و توسط کارخانجات فولاد در ایران تولید می شود. اندازه های 12 تا 30 رایج ترین آن است. IPE تولید شده در شرکت ذوب آهن اصهان بر اساس استاندارد ملی به شماره ISIRI1791 و مطابق با استانداردهای DIN1025-5 در ابعاد، جرم و مقادیر ایستایی تولید می گردد. شرکت ذوب آهن، فولاد ابزار ایرانیان و گروه ملی اهواز از عمده تولید کنندگان تیرآهن در ایران هستند.
تیرآهن INP
ضخامت بال در INP با فاصله گرفتن از وسط تیر کم می شود. این استاندارد در کشوری نظیر چین رایج است و تولید کنندگان بر مبنای آن تولید می کنند. مشخصات ابعادی تیرهای INP بر اساس استاندارد EN10365 و مقاومت آن نیر بر اساس EN10024:1995 هستند.

تیر آهن IPB
این تیر با نام هاش یا تیرآهن اچ نیز در بازار نامیده می شوند. شبیه به حرف H است و عرض بال در آن به اندازه جان تیر یا بیشتر از IPE است. تیرآهن اچ نیز به دو دسته سبک HEA و سنگین HEB تقسیم می شود. مصارف هاش سنگین برای استفاده در پل سازی یا برج های مرتفع است. به این نوع تیر بال پهن هم گفته می شود. هاش دارای مشخصات ابعادی EN10365 و استاندارد مقاومتیEN10034:1993 است. به دلیل وزن بالاتر و استانداردهای خاصی که در این محصول اجرا می شود قیمت تیرآهن هاش بالاتر از تیر آهن ساختمانی IPE است. هاش عمدتا وارداتی است اما در ایران شرکت ذوب آهن اصفهان آن را شمش ریزی می کند.

تیر آهن لانه زنبوری CPE
تیرآهن لانه زنبوری یا شبکه ای یکی از انواع تیر های معرفی شده IPE، INP یا IPB است، با این تفاوت که مرکز آن را به صورت شش ضلعی یا در مواردی دایروی خالی می کنند. علت این کار بالا بردن تحمل گشتاور خمشی تیر در بار گذاری است. این تیر با اختصار CNP نیر نامیده می شود. باید توجه کرد که برای ساخت تیرآهن زنبوری اجرت برش و جوشکاری دریافت می گردد.
تیرآهن 14 پر استفاده ترین سایز تیرآهن در کشور
کارخانجات متعددی در ایران این مقطع فولادی را در خط تولید خود ذوب ریزی و نورکاری می کنند. ماهان در شهر سمنان، گروه ملی اهواز، ناب تبریز، فایکو در شهر ساری و ظفر بناب، نورد آریان فولاد، شاهین بناب از تولید کنندگان مطرح تیرآهن محسوب می شود. البته در این بین شرکت ذوب آهن اصفهان بالاترین تیراژ تولید در کشور را دارد. محصولات این شرکت را در بازار به اصطلاح تیرآهن ذوبی می نامند.
تیرهای استاندارد IPE در ساختمان سازی از سایز 8 تا 60 دسته بندی می شوند. هرکدامیک از این سایزها دارای وزن متفاوتی می باشد. 8 ، 12 ، 14 ، 16 ، 18 ، 20 ، 22 ، 24 ، 27 و 30 سایزهای پرکاربردتری هستند. در میان این سایزها تیرآهن 14 بیشترین مصرف را در ساختمان سازی دارد. به دلیل پهناور بودن کشورمان ایران، اغلب ساخت و سازها در ارتفاع محدودی انجام می شود و چون وزن زیادی بر روی سقف طبقه اول اعمال نمی شود اکثر سازندگان از سایز تیرآهن 14 استفاده می کنند. در برخی مواقع به جای استفاده از تیر 14 از پروفیل 140 در 140 استفاده می شود که به آن ستونی 14 گفته می شود.
قیمت تیر آهن 14
با توجه به وزن بالایی که آهن آلات دارد، یکی از عوامل تاثیر گذار در قیمت تمام شده سازه های فلزی قیمت تیرآهن است. قیمت بر مبنای نرخ روز در بازار جهانی فلزات سنگین، بهای ارز و همچنین میزان موجودی در داخل تعیین می گردد. کیفیت ساخت، وزن هر شاخه، مقدار خرید و محل تحویل از مواردی هستند که بر قیمت تیرآهن موثر هستند.
خرید تیرآهن
شما می توانید برای استعلام قیمت تیرآهن 14 و یا سایر مقاطع فولادی نظیر ، نبشی و ناودانی، قیمت پروفیل و... با شرکت نگین فولاد السا به شماره های 02144448200 تماس حاصل فرمایید و یا به وبسایت این مجموعه به نشانی www.neginfoolad.ir مراجعه و از آخرین نرخ مقاطع فولادی مطلع شوید. تمامی کارشناسان این شرکت آماده پاسخگویی به سوالات شما عزیزان پیش از خرید هستند. خریدهای انجام شده همگی با فاکتور رسمی می باشد و کلیه عملیات بارگیری تا تخلیه و ارسال آن به تمامی نقاط ایران توسط این شرکت انجام می گیرد.
    
دیدگاه تان را بنویسید